Fil d'Ariane
- Accueil
- Normandie
- Petites annonces Locaux
- COWORK - Loue poste de travail - Rouen centre
MICHA CROCQ ARCHITECTE
MICHACROCQ
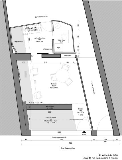
45 rue Beauvoisine
76000ROUEN
France



Loue poste de travail dans agence, Rouen centre-ville.
Local situé 45 rue Beauvoisine, à rez-de-chaussée.
Loyer, charges et conso. comprises : 400€ / mois
Plus de renseignement au 06.83.88.41.05